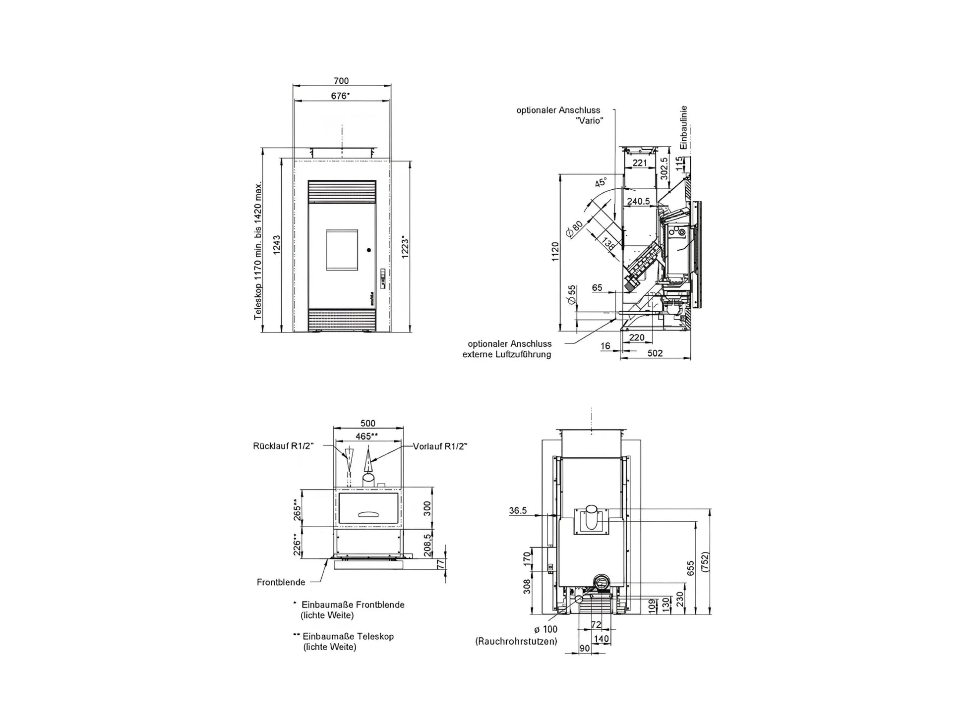
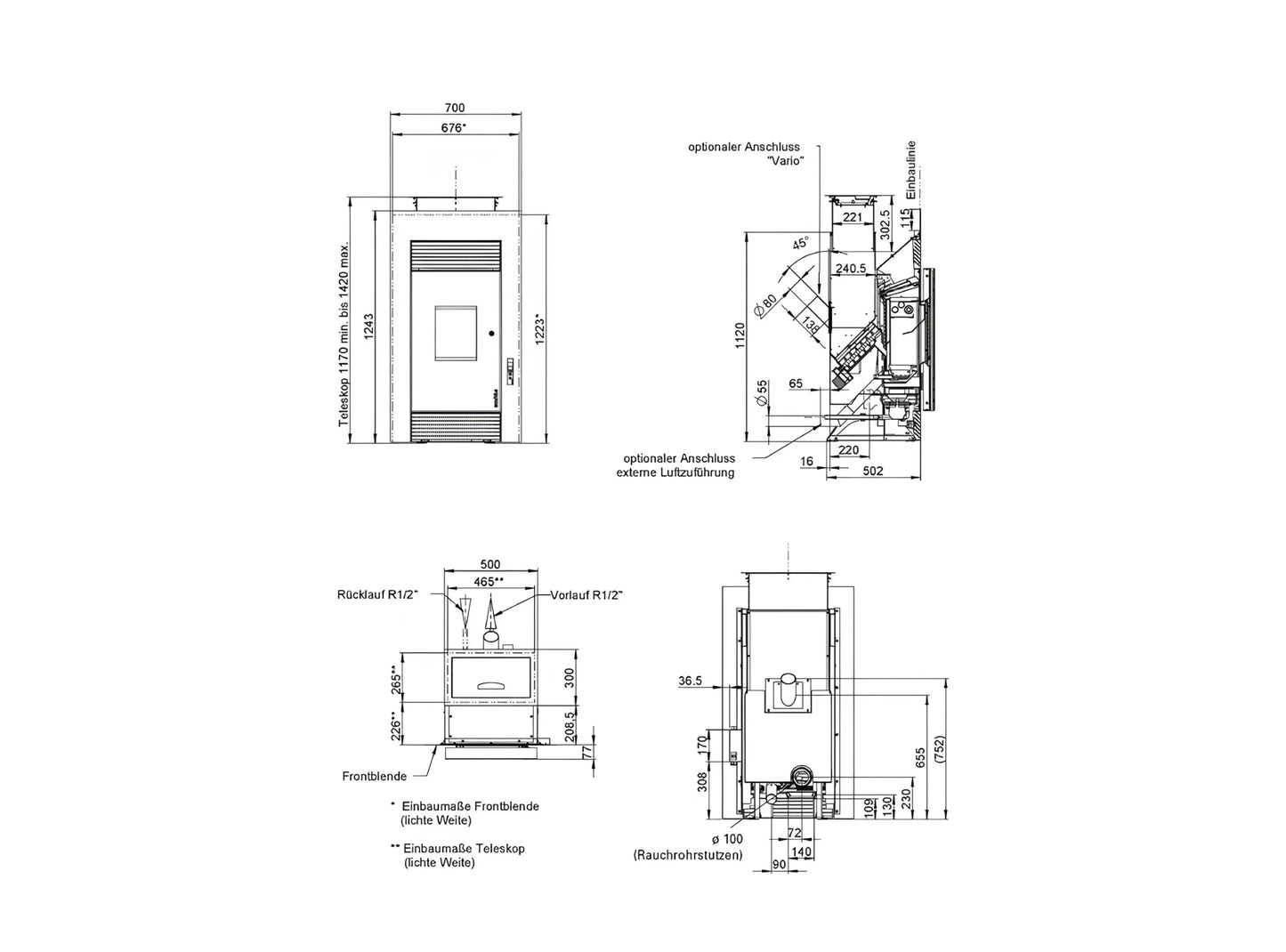
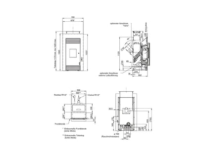
Pelletofen Wodtke PE Nova Einbaugerät water+ 8/10 kW wasserführend
Lieferzeit: ca. 4 Wochen
Pelletofen Wodtke PE Nova Einbaugerät water+
Nennwärmeleistung: 8/10 kW
Wirkungsgrad (%): 93,8 / 94,2
Verfügbarkeit für Abholungen konnte nicht geladen werden
- Kauf auf Rechnung | Ratenzahlung
- 14 Tage Rückgaberecht
- Sicher einkaufen | SSL zertifiziert
Beratung gewünscht? Wir helfen gerne: 0152 51954270
Mehr Details

Wärme clever nutzen: Der PE Nova water+ als vielseitiger Kaminofen
Moderne Heiztechnik trifft beim Kaminofen PE Nova water+ von Wodtke auf zeitlose Feuerromantik. Als Einbaugerät konzipiert, fügt sich dieser wasserführende Pelletofen elegant in unterschiedliche Wohnkonzepte ein und macht die Feuerstelle wieder zum Mittelpunkt des Raumes – mit einem klaren Fokus auf Effizienz und Nachhaltigkeit. Die erzeugte Wärme wird nicht nur direkt im Raum spürbar, sondern auch über einen integrierten Wasserwärmetauscher in den Heizkreislauf eingespeist. So entsteht eine durchdachte Verbindung aus Komfort und Energieeinsparung. Besonders in Niedrigenergie- und Passivhäusern zeigt sich das volle Potenzial des Systems.
Kaminofen PE Nova water+: Smarte Technik für hohe Ansprüche
Die durchdachte Technik im Inneren des Kaminofens PE Nova water+ sorgt für eine präzise, mikroprozessorgesteuerte Steuerung. Brennstoffmenge und Verbrennungsluft werden optimal aufeinander abgestimmt – das Ergebnis: ein sauberer Abbrand bei einem Wirkungsgrad von über 90 %. Der integrierte Wasserwärmetauscher speist die Wärme effizient ins Heizsystem ein, wodurch sowohl der Aufstellraum als auch ein Pufferspeicher konstant beheizt werden können. Die gespeicherte Energie steht flexibel zur Verfügung – genau dann, wenn sie gebraucht wird.
Vielseitigkeit trifft Design – Kaminofen mit System
Neben technischer Raffinesse überzeugt der Kaminofen PE Nova water+ auch in der Praxis: Die Bedienung erfolgt direkt am Gerät oder alternativ über einen externen Thermostat. Vier kugelgelagerte Laufrollen erleichtern den Aufbau, während Funktionen wie eine kindersichere Türverriegelung und eine Vorlauftemperaturbegrenzung (75 °C) für Sicherheit sorgen. Dank seiner leisen Arbeitsweise und der Möglichkeit zur Anbindung an externe Pelletzufuhr bleibt der Betrieb komfortabel und dezent. In Kombination mit erneuerbaren Energien wie Solarthermie oder Wärmepumpe entsteht ein zukunftsfähiges Heizkonzept, das Energie intelligent nutzt und dabei den Wohnkomfort spürbar erhöht.
Besonderheiten
• patentierte, besonders sichere Verbrennungstechnik
• Mikroprozessor gesteuert: Für einen effektiven Abbrand mit hohem Wirkungsgrad wird Brennstoff- und Verbrennungsluftmenge exakt aufeinander abgestimmt
• Laufzeit mit einer Füllung bis zu 110 h
• komfortable Bedienung am Ofen oder über externen Thermostat
• integrierte Vorlauftemeperaturbegrenzung (75 °C)
• 4 kugelgelagerte Laufrollen für einen einfachen und bequemen Aufbau
• Leiser Betrieb
• Kindersicherer Türverschluss
• Anschluss für externe Pelletbeschickung (Option)
• Garantie: 2 Jahre
- 2. Stufe der 1. BImSchV erfüllt
- Nennwärmeleistung 8 kW oder 10 kW
- Energieeffizienzklasse*: A++** / A+
* Energieeffizienzklassen im Bereich von A++ bis G
** Bei Inbetriebnahme mit Regelungstechnik FT1/UT1/UT2/TC1 - Raumheizvermögen 40 m² bis 200 m² (min./max. Leistung) bei 50 Watt/m² Bedarf
- Brennstoff Holzpellets mit Aschegehalt < 0,7%
- CO-Gehalt im Abgas < 0,02 %-Vol.
- Abgastemperatur 55°C - 117°C (142°C bei 10 kW)
- Abgasmassenstrom 6 - 7,1 g/s (6,4 - 9,5 g/s bei 10 kW)
- Notwendiger Förderdruck (Schornsteinzug) 0 PA
- Mehrfachbelegung mit Sicherheitseinrichtung möglich
- Geprüft nach EN 14785, DIN 18894 und Art. 15a B-VG
- Vorratsbehälter mit Teleskop für ca. 55 kg Pellets
- E-Leistungsaufnahme < 50 W
- E-Zündung kurzfristig 250 W
- Gewicht 138 kg
wodtke GmbH, Rittweg 55 - 57, D-72070 Tübingen-Hirschau, Deutschland, Kontakt: info@wodtke.com
Weitere Top-Artikel von Wodtke
Pelletofenzubehör Wodtke - Pellet Vorratsbehälter - ivo.tower
6.391,49€
6.555,00€
Pelletofen Wodtke Pat water+ 8/10 kW wasserführend
6.737,66€
6.995,00€
Pelletofen Wodtke soleo.nrg H10 air+ 6/8 kW
6.381,97€
6.895,00€
Pelletofen Wodtke Topline New Motion air+ 8 kW
6.481,93€
6.995,00€
Pelletofen Wodtke soleo.nrg V12 air+ 6/8 kW
6.976,97€
7.329,00€
Pelletofen Wodtke Shogun air+ 6/8 kW
6.212,99€
6.495,00€
Pelletofen Wodtke PE Nova Einbaugerät water+ 8/10 kW wasserführend
9.128,49€
9.759,00€
Pelletofen Wodtke Pat selection eq air+ 6/8 kW
3.990,07€
4.269,00€
Pelletofen Wodtke Jack water+ 8/10 kW wasserführend
7.206,64€
7.444,00€
Pelletofen Wodtke ixpower e8 air+ 6 kW
12.660,41€
12.999,00€
Pelletofen Wodtke ixbase air+ 6 kW
11.280,00€
11.599,00€
Pelletofen Wodtke ivo.tec water+ 8/9/13 kW wasserführend
14.100,31€
14.423,00€
Pelletofen Wodtke ivo.smart water+ 8/9/13 kW wasserführend
11.249,07€
11.495,00€
Pelletofen Wodtke Frank water+ 8/10 kW wasserführend
7.397,04€
Pelletofen Wodtke family.nrg selection air+ 6/8 kW
5.782,21€
5.995,00€
Pelletofen Wodtke family.nrg air+ 6/8 kW
6.573,56€
Pelletofen Wodtke crazy.nrg air+ 6/8 kW
7.582,68€
7.865,00€
Weitere Marken
Weitere Kategorien
Jetzt Newsletter sichern
Erhalten Sie aktuelle Informationen zu neuen Modellen, Aktionen und Trends rund um Kamin- und Ofenerlebnis. Als Dankeschön für Ihre Anmeldung schenken wir Ihnen 5 € Rabatt auf Ihre nächste Bestellung.
Schneller Versand | Deutschlandweit
Kauf auf Rechnung | Ratenzahlung
Kauf ohne Risiko | 14 Tage Rückgaberecht
Sicher einkaufen | SSL zertifiziert
Kategorien
Rechtliches
Wissenswertes
Kontakt
Ofenerlebnis
Brunecker Straße 17
86316 Friedberg
Deutschland
Telefon: +4982129728413
E-Mail: info@ofenerlebnis.de
WhatsApp: 0152 51954270
© 2025 Ofenerlebnis - Alle genannten Marken und Warenzeichen sind Eigentum ihrer jeweiligen Inhaber und dienen nur zur Beschreibung.
- Wenn du dich für eine Auswahl entscheidest, wird die Seite komplett aktualisiert.
- Wird in einem neuen Fenster geöffnet.



